The Ashbury | Portfolio of Homes | Countrylane Heathwood

CLASSIC COLLECTION

The Ashbury
A
ELEVATION
B
ELEVATION

45′ LUXURY HOMES

The Ashbury

Classic collection

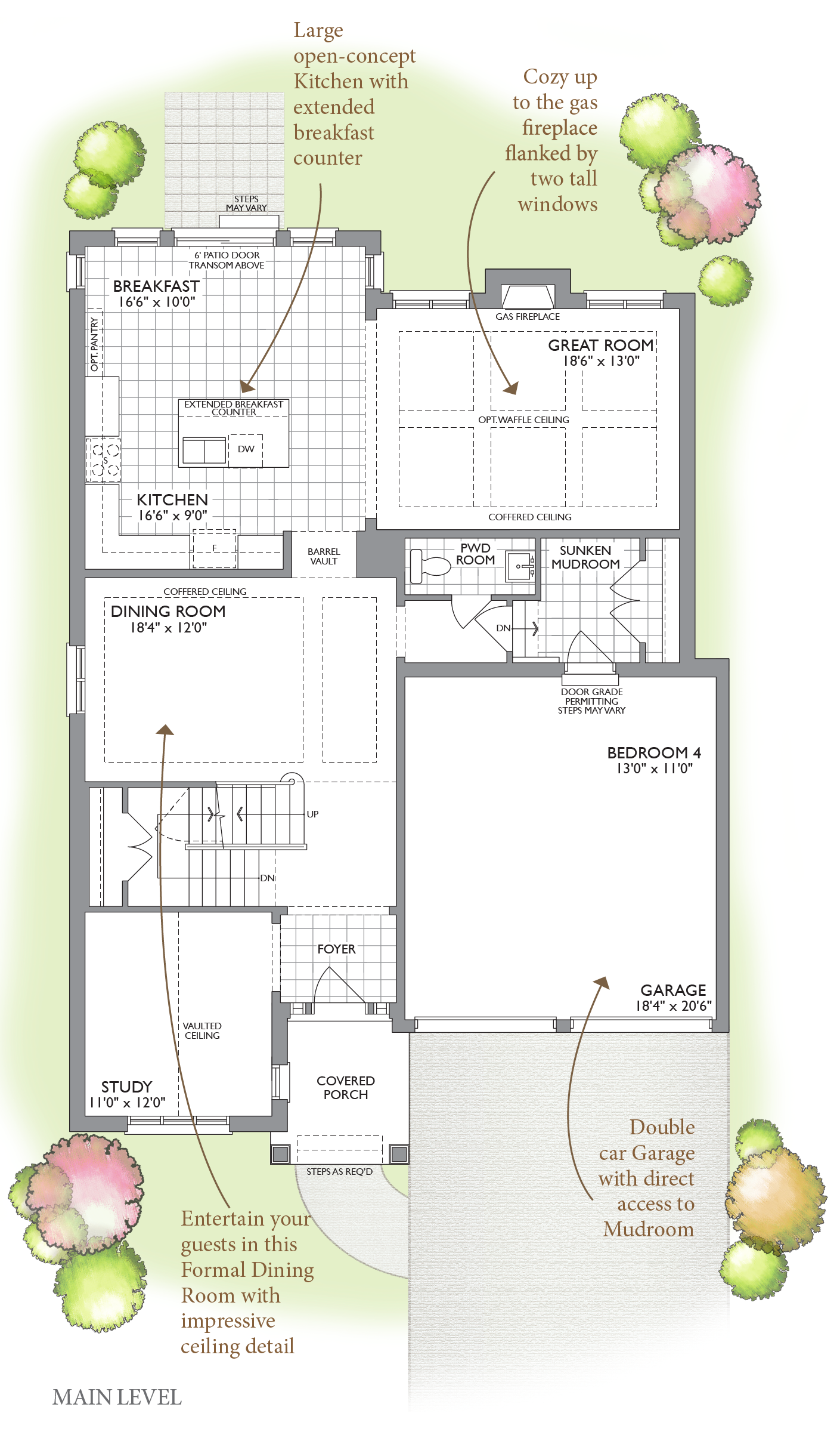
Elevation A - 3,873 sq. ft.
Elevation B - 3,901 sq. ft.

Includes 943 Square Feet of finished Lower Level


Main Level

Second Level

Finished Lower Level

Main Level

Second Level

Finished Lower Level

Actual usable space may vary from stated area. Dimensions, specifications and architectural detailing are subject to changes without notice E. & O.E. All renderings and landscape features are artist’s concept.

MAKING A DIFFERENCE IN OUR COMMUNITY

The Country Lane Community will be making a donation to The Mikey Network on behalf of the residents that buy at Country Lane. Together we can save a life, make a lasting difference and help the beat go on within our community.

LEARN MORE